Дома под ключ в Воскресенске
Отзывы из Яндекс Карт
4.9
78 отзывов
Дополнительные услуги 88%
2 154 оценок
Комплектации 89%
1 535 оценок
Планировки 90%
2 484 оценок
Проекты 93%
2 231 оценок
С
Герман Назаров05.03.2026 г.
В первые месяцы была небольшая усадка, как и предупреждали. Окна и двери не зажало, все функционирует нормально.
С
Анфиса Киреева24.01.2026 г.
Наконец-то осуществили мечту — дом 10х12 с гаражом и балконом. Компания предложила два варианта планировки, я долго сомневалась насчёт лестницы, в итоге сделали удобную, не крутую. Строили 8 месяцев, но это с учётом усадки бруса — сейчас живём, полы не ск
С
Виталий Стрелков12.05.2025 г.
Постройка дома — это всегда стресс, но сотрудники "Брус дома" сделали этот процесс максимально комфортным и прозрачным! Отдельно хочу отметить оперативность подготовки всех документов и сметы, а также гибкость в вопросах планировки, мне пошли навстречу и внесли несколько изменений в типовой проект без лишних проволочек. Бригада сработала на отлично, дом собран добротно, все углы ровные, стены гладкие, и он прекрасно пережил первую зиму без единой щели или сквозняка!
Отзывы из Google Карт
4.8
47 отзывов
Дополнительные услуги 88%
2 154 оценок
Комплектации 89%
1 535 оценок
Планировки 90%
2 484 оценок
Проекты 93%
2 231 оценок
С
Илона Киселёва25.05.2026 г.
Сначала думала, что баня — это просто парилка и предбанник. Оказалось, можно сделать целый комплекс с комнатой отдыха и душевой. Мы теперь там практически живем летом.
С
Радомир М.05.04.2026 г.
Процесс был небыстрый, с фундаментом затянули из-за дождей. Но бригадир звонил регулярно, отчитывался. Когда въехал, понял, что ожидание того стоило — дом тёплый, пахнет лесом, никаких щелей.
С
Феликс19.03.2025 г.
Хочу отметить оперативность и слаженность работы всей команды, от менеджера Александра, который курировал наш проект, до строителей, которые несмотря на дожди смогли всё сделать в срок и без потери качества.
Отзывы из 2гис
4.9
37 отзывов
Дополнительные услуги 88%
2 154 оценок
Комплектации 89%
1 535 оценок
Планировки 90%
2 484 оценок
Проекты 93%
2 231 оценок
С
Серафим Козырев07.02.2026 г.
С коммуникациями помогли: согласовали подключение электричества, нарисовали схему для скважинщиков. Это сильно сэкономило время.
С
Видана Шувалова25.08.2025 г.
Теперь я точно знаю, что значит — построить дом без хлопот. Я лишь приняла решение и выбрала проект, а все остальные заботы на себя взяла компания "Брус дома". От закупки материалов до финальной отделки — все было сделано именно так, как я хотела. Я просто приехала и получила ключи от своего прекрасного дома.


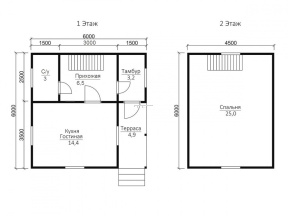
Проект №11 Дом с мансардой 6х6

каркас из строганой доски
Создайте свой план для этого проекта
и отправьте его нам на расчет в один клик.
Каркасный дом (150 мм) 6х6 Толщина утепления 150 мм 1620400 Заказать
Каркасный дом (200 мм) 6х6 Толщина утепления 200 мм 1770400 Заказать

Для того, чтобы получить индивидуальную планировку, воспользуйтесь планировщиком.

С помощью планировщика вы имеете возможность сделать планы, чертежи, схемы, эскизы намечаемого дома с мансардой, эркером, с несколькими спальнями. Вы получите отличный проект, который полностью отвечает вашим потребностям.

Вы имеете возможность выбрать вид кровли. Вашу крышу можно сделать четырехскатной, двускатной и вальмовой. Двухскатная крыша - самая востребована в не очень больших домах.

Востребованные размеры домов на текущий момент: мини - до 50 кв. М (чаще всего, одноэтажные дома); компактные - от 70 кв. М до 100 квадратов (обычно двухэтажные); большие постройки - от 150м2 и больше.

Строим дуплексы - большие современные каркасные постройки с 2-мя входами на две семьи. Такие дома предполагаются для нескольких хозяев, они разделяются на две половины, для обоих половин - свой отдельный вход.


Наши работы

Перейти в галерею


Комплектация

Площадь застройки: 36 м2
Длина: 6 м
Ширина: 6 м
Общая площадь: 50.61 м2
Исполнение Под ключ (с отделкой)
Фундамент Свайно-винтовой или ж/б сваи (рассчитываются отдельно).
Гидроизоляция фундамента Рубероид в два слоя.
Основание (обвязка) Из обрезного бруса 150х150 мм. 150х200 мм. согласно выбранной толщине утепления. Торцевая доска строганая 45х145/45х195+/-5 мм. согласно выбранной толщине утепления. Обработка антисептиком.
Цокольное перекрытие Строганая доска камерной сушки 45х145/45х195+/-5 мм. с шагом 590 мм. Обработка антисептиком.
Пол черновой Обрезная доска камерной сушки 20х100 мм.
Влаго-ветрозащита чернового пола Мембрана Ондутис А100.
Внешние стены Стойки каркаса из строганой доски камерной сушки 45х145/45х195+/-5 мм. с шагом 590 мм. Верхняя двойная и нижняя обвязки из строганой доски камерной сушки 45х145/45х195+/-5 мм. Разгрузочный ригель из строганой доски 45х145+/-5 мм. Укосины из строганой доски 20х95 мм.
Перегородки Стойки каркаса из строганой доски камерной сушки 45х95+/-5 мм. с шагом 590 мм. Верхняя двойная и нижняя обвязки из строганой доски 45х95+/-5 мм. Разгрузочный ригель из строганой доски камерной сушки 45х145+/-5 мм. Укосины из строганой доски камерной сушки 20х95 мм.
Сборка каркаса На гвозди.
Высота от пола до потолка Дом одноэтажный: 2,5 м. Дом с мансардой: 1-ый этаж- 2,5 м.
2-ой этаж (мансарда)- 2,3 м.
Дом в полтора и два этажа:
1-ый этаж 2,5 м.
2-ой этаж 2,4 м. в полутораэтажном доме
2,5 м. в двухэтажном доме.
Внешняя отделка стен Имитация бруса камерной сушки, сорт АВ, толщиной 17 мм. Монтаж через строганый брусок камерной сушки 45х45+/-5 мм. (вентилируемый фасад). Влаго-ветрозащитная мембрана- Ондутис А100.
Внутренняя отделка стен, перегородок Евровагонка камерной сушки, сорт АВ, толщиной 12,5 мм. по строганой рейке 20х40+/-5 мм. либо ГКЛ 12,5 мм.
Отделка потолка Евровагонка камерной сушки, сорт АВ толщиной, 12,5 мм. по строганой рейке 20х40+/-5 мм. либо ГКЛ 12,5 мм.
Пол чистовой Шпунтованная доска камерной сушки толщиной 35-36 мм. сорт АВ. по строганой рейке 20х40+/-5 мм. либо шпунтованная ДСП 16 мм. по разряженной обрешётке из строганой доски камерной сушки 20х95+/-5 мм.
Утепление (пол, потолок) Минеральная вата Knauf 150/200 мм. согласно выбранной толщине утепления.
Утепление стен Плитный утеплитель Rockwool, толщиной 150/200 мм. согласно выбранной толщине утепления.
Звукоизоляция перегородок Плитный утеплитель Rockwool, толщиной 100 мм.
Пароизоляция (стены, перегородки, пол, потолок) Плёнка Ондутис R70. Дополнительная герметизация нахлёстов/примыканий пароизоляционной плёнки клейкой лентой Delta.
Окна Двухкамерные стеклопакеты ПВХ белого цвета, профиль 60 мм. В комплекте: отливы, подоконники, москитные сетки.
Двери Входная- металлическая, утеплённая (Россия). Межкомнатные- филёнчатые.
Наличники на окна и двери Наличник деревянный, строганый, камерной сушки 70-90 мм. с двух сторон.
Лестница (при наличии второго этажа) Деревянная, одно или двухмаршевая. Перила- заводские резные, балясины- заводские точеные, устанавливаются стартовые точёные столбы. Ступени 40х200 мм. Тетива лестницы- 90х140 мм.
Крыша Двускатная, ломаная или вальмовая в соответствии с проектом.
Стропильная система Выполнена из строганой доски камерной сушки 45х145/45х195+/-5 мм. Шаг установки стропил 590 мм.
Обрешётка Выполняется из строганой доски камерной сушки толщиной 20х95+/-5 мм. Шаг крепления обрешетки 350 мм. Контробрешётка выполняется из строганого бруска камерной сушки 45х45+/-5 мм. Крепится по стропилам (вентиляционный зазор).
Подкровельная мембрана Ондутис А100
Кровельное покрытие (на выбор) Металлочерепица 0,45 мм. Цвет на выбор.
Фронтоны (при наличии) Каркас из строганой доски камерной сушки 45х145/45х195+/-5 мм. Обшиваются имитацией бруса камерной сушки, сорт АВ, толщиной 17 мм. Монтаж через строганый брусок камерной сушки 45х45+/-5 мм. (вентилируемый фасад). Влаго-ветрозащитная мембрана- Ондутис А100. Монтаж вентиляционных решёток.
Свесы крыши Ширина 400 мм. Подшиваются вагонкой камерной сушки, сорт АВ.
Терраса/балкон (при наличии) Устанавливаются опорные столбы из строганного бруса камерной сушки 140х140 мм.
Отделка потолка террасы/балкона Евровагонка камерной сушки толщиной 12,5 мм. сорт АВ.
Пол террасы/балкона Шпунтованная доска камерной сушки толщиной 35-36 мм. сорт АВ.
Ограждение террасы/балкона Перила- строганая доска. Балясины- точеные, фигурные. Либо ограждение в скандинавском стиле. Устанавливаются ступени у входа.
Допуск на геометрические параметры Составляет +/- 50 мм по длине с каждой стороны.
Допускается стыковка имитации бруса, вагонки и половой доски По всему периметру стен дома (если ширина и длина дома более 6,0 метров). Вагонки и доски пола в каждой отдельной комнате.
Допуски по имитации бруса, вагонке, доске +/- 5 мм.
В стоимость включена Доставка комплекта материала в радиусе 500 км. от г. Пестова Новгородской области и сборка дома на вашем участке.
Гарантия 5 лет.
Бытовка строительная 2,0х3,0 м. каркасно-щитовая. Стоимость 23000 руб. Остаётся на участке Заказчика.
Туалет 1,0х1,0 м. каркасно-щитовой. Стоимость 12000 руб. Остаётся на участке Заказчика.
Генератор Стоимость аренды на весь срок строительства 15000 руб. ГСМ за счёт Заказчика.

Постройка каркасных домов производится в двух вариантах: под усадку, когда дом будет отстаиваться в течение определенного времени и сразу под ключ.

Зимой мастера советуют строить дом в холодную погоду, чтобы каркас не успел промокнуть, в теплое время года - не в дождливую.

Подходящими для дачи или сада являются дома на винтовых сваях, в нашем онлайн-каталоге присутствуют одноэтажные и полуторатажные дома.

Для ПМЖ (постоянного проживания), можем предложить теплые коттеджи и дома на ленточном и плитном фундаменте.

Мы предлагаем 2 варианта толщины утепления: 150 мм и 200 мм. Каркасные дома с толщиной утеплителя 150 миллиметров получаются дешевле, но не такими теплыми.

Дополнительные услуги


Дом из каркаса , по эскизу 11 полутораэтажный с теплоизоляционной двускатной строительной конструкцией крыши, выделяется экологической безопасностью, в связи с применением высоконадежных ОСП-плит, ваты минеральной и базальтовой, а это создает первоклассную защиту от морозов, комфортный микроклимат в жилище. Нормы этого уютного гнездышка составляют 6х6 м., общая жилплощадь - 50.61 кв.м.. Наша организация в кратчайшие сроки выстроит дом из каркаса по индивидуальному или типовому проекту в Воскресенске в оптимальное для вас время года и на выбранном вами типе грунта.

Популярные проекты


Каркасные дома 8х9 Каркасные дома 7х9 Бани из бруса 6х9
хит продаж
Тип:
Общая площадь: 2
2719900
от 2590400
хит продаж
Тип: с террасой
Общая площадь: 2
1932400
от 1840400
хит продаж
Тип:
Общая площадь: 2
2877400
от 2740400
Дома из бруса

Заказать или задать вопрос



Заказать или задать вопрос

Заказать звонок